Construction d’une maison en briques avec toiture terrasse

Construction d'une villa en briques terre cuite isolantes R20 TH+ - R=1.45m2K

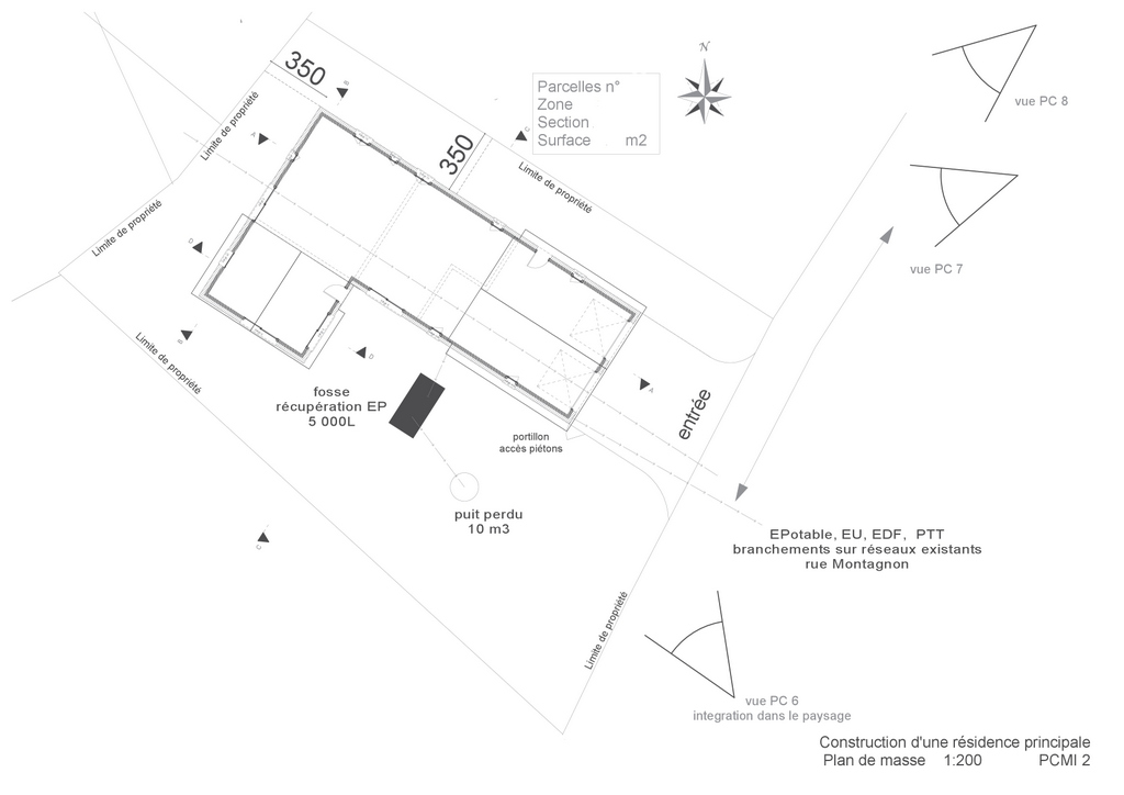
Nous avons réalisé à Lupé la construction d’une villa individuelle.

Dès le début nous avons assisté les clients dans la réalisation du projet et dans les démarches du dépôt de permis de construire.

Nous avons ensuite, avec le terrassier et en collaboration avec les clients  implanté la maison à l’ endroit le plus approprié en fonction du relief du terrain.

Puis, le terrassement terminé, nous avons creusé et coulé les fondations et entrepris la construction. 

Cette construction tient compte des règles de construction en zone sismique 3 modérée. Une étude béton a par ailleurs été demandée par le client à un ingénieur béton. Nous avons bien entendu scrupuleusement respecté les directives qui nous incombaient.

Nous nous sommes chargés de la charpente et de la couverture. La partie habitation a été réalisée en fermette et le garage en traditionnelle. Nous en  avons profité pour proposer aux clients de réaliser une suspente afin de profiter d’un peu de rangement sous toiture dans le garage.

Les clients se sont chargés de faire réaliser l’étanchéité de la toiture terrasse et tous les lots de finitions intérieures et extérieures.

Vous retrouverez ci-dessous les principales étapes de la construction

Intégration dans le paysage avant travaux réalisée par notre bureau d'étude

EN IMAGES

Terrain, projet, plans d’exécution, terrassement

Préparation du rez de chaussée

Elévation du rez de chaussée

Plancher béton sur rez de chaussée, escalier et toiture terrasse

Charpente couverture

Maison terminée